Сдам в аренду офис 43 м.кв.

на карте
Объявление в архиве
49 900 руб. / мес
Ростов-на-Дону , город Ростов-на-Дону, Кировский, Петровская улица, д.43
Максим
Контактные данные скрыты, так как объявление находится в архиве
назначения
Данные актуальны на 02.02.2026
Пожаловаться на объявление
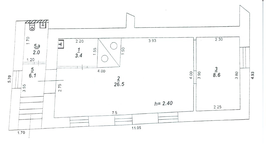
Прямая аренда офиса от собственника 43м2 в центре города с развитой инфраструктурой. В стоимость аренды включены все КУ, кроме электроэнергии. Помещение светлое, теплое, после капитального ремонта, первая сдача. Отдельный вход с улицы, в помещении 5 комнат, 2 мокрые точки (с/у, кухня, можно добавить 3 точку), установлен сплит, видеонаблюдение, пожарная система оповещения, заведена оптика для интернет. Звоните, отвечу на все вопросы, на сообщения отвечаю редко.

Дополнительная информация

Тип здания - Класс БЦ - Этаж 1 Этажность 3 Количество комнат 5 Вход Отдельный Ремонт С ремонтом
Интернет Есть Кондиционер - Вентиляция - Пожарная сигнализация - Пропускная система - Охраняемая парковка -
Динамика изменения цен на рынке недвижимости ?

По району Кировский, в категории Офисная недвижимость » Офисы
За последние полгода средняя сумма аренды за кв.м. выросла на 28 руб. Колебание цен происходило от 686 руб. до 714 руб. Тендов к значительному изменению цены в последнем месяце не наблюдается.
За последние полгода средняя сумма аренды за кв.м. уменьшилась на 1 руб. Колебание цен происходило от 782 руб. до 790 руб. На текущий момент наблюдается тенденция к росту цены.
Вход в личный кабинет