Сдам в аренду офис 108 м.кв.

на карте
Объявление в архиве
90 000 руб. / мес
Ростов-на-Дону , город Ростов-на-Дону, Пролетарский, 40-я линия улица, д.5
Максим
Контактные данные скрыты, так как объявление находится в архиве
назначения
Данные актуальны на 06.03.2026
Пожаловаться на объявление
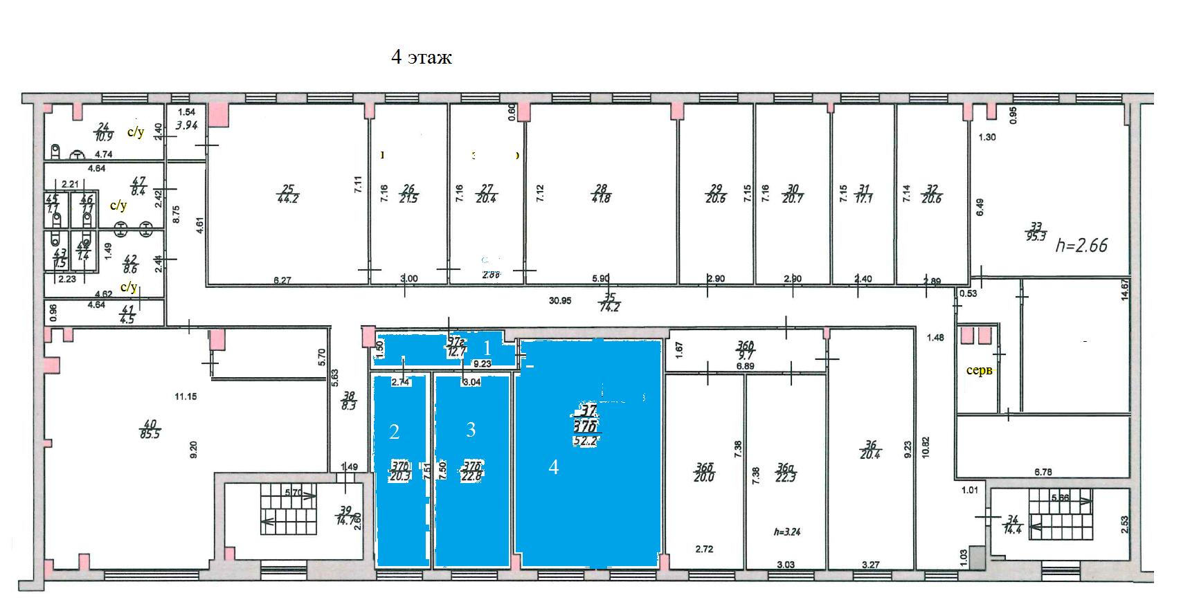
Сдаются 3 готовых офиса на 4 этаже в Нахичевани (БЦ). Прямая аренда от собственника. Без комиссий и переплат. Предлагаются 3 отдельных кабинета на 4-м этаже бизнес-центра. Въезд возможен сразу после подписания договора — в помещениях выполнен качественный ремонт. Что входит в стоимость (НДС 22% уже включен): Эксплуатационные расходы и коммунальные платежи Физическая охрана здания и видеонаблюдение Пользование парковкой Ежедневная уборка мест общего пользования Техническое оснащение: - Выделенный оптический канал от оператора связи (скорость до 10 Гбит/с) с готовой разводкой сети по кабинетам. - В каждом кабинете сеть рассчитана на 6–20 рабочих мест — дополнительные вложения в организацию локальной сети не требуются. В каждом помещении: - Современное светодиодное освещение - Индивидуальные сплит-системы - Система пожарной безопасности и оповещения Безопасность и комфорт: На входе на этаж установлена система контроля доступа (СКУД), домофон и видеонаблюдение. Инфраструктура: Рядом остановка общественного транспорта, аптека, супермаркет. Удобная транспортная развязка в районе Нахичевани. Смотрите планировку в фотографиях. Звоните для показа в любое удобное время.

Дополнительная информация

Тип здания - Класс БЦ - Этаж 4 Этажность 5 Количество комнат 3 Вход - Ремонт С ремонтом
Интернет Есть Кондиционер - Вентиляция - Пожарная сигнализация - Пропускная система - Охраняемая парковка -
Динамика изменения цен на рынке недвижимости ?

За последние полгода средняя сумма аренды за кв.м. выросла на 3 руб. Колебание цен происходило от 699 руб. до 741 руб. На текущий момент наблюдается тенденция к росту цены.
За последние полгода средняя сумма аренды за кв.м. выросла на 3 руб. Колебание цен происходило от 782 руб. до 789 руб. На текущий момент наблюдается тенденция к росту цены.
Вход в личный кабинет